Sold Spectacular Waterfront Estate - Sheer Paradise - $9,500,000

Newport

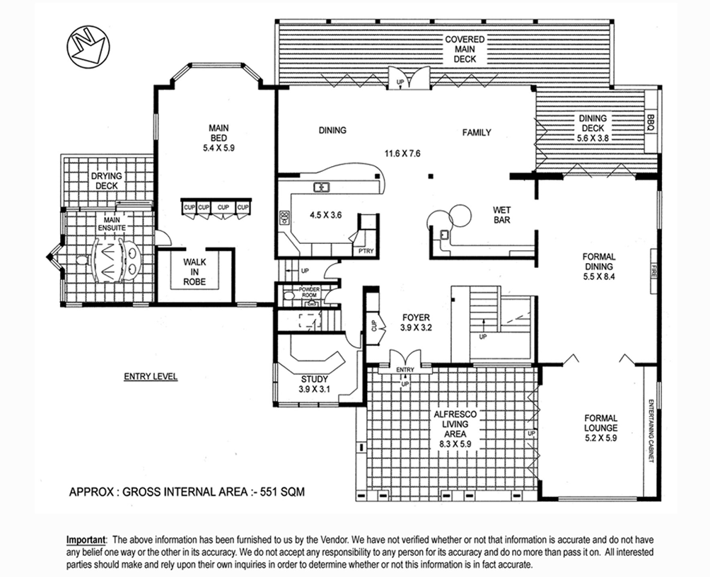
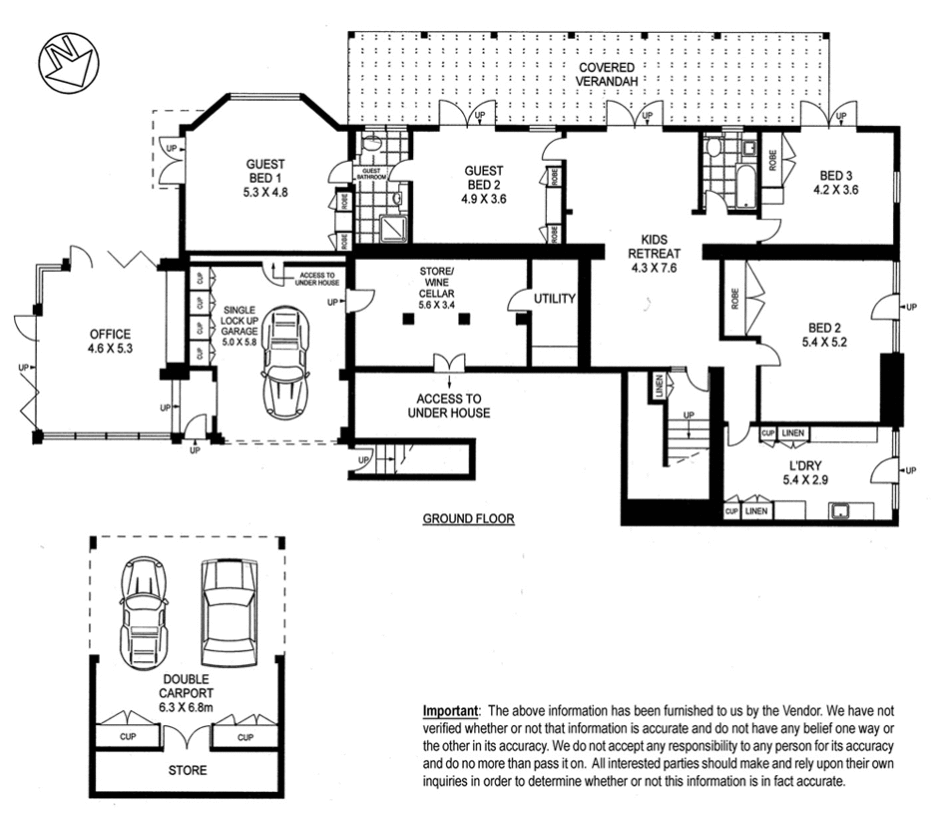
One of Sydney's most iconic deep waterfront estates, this world-class property is positioned on an enormous 2,972 sq metres (almost 3/4 of an acre of park-like grounds) on the foreshores of Pittwater, Sydney's exclusive yachting sanctuary.

Enormous in its proportions, the home enjoys a prominent position with spectacular views and boasts an exceptional waterfrontage of 76 metres with jetty, pontoon and berth for a boat up to 50ft.

Originally built in the 1930's, this stately residence has been completely refitted in a Contemporary style to the highest of standards without compromising on its original grandeur.

Indeed a rare and very exclusive offering within a comfortable 40 minutes of Sydney's CBD.

Be sure to visit our 2 min online video at maxwalls.com

.



Share

  • Rooms 7 Beds, 4 Baths, 3 Cars
  • Sold Confidential

Features

  • Property Features

    • Air Conditioning
    • Alarm System
    • Garages 3
    • Intercom
    • Open Fireplace
    • Pool

ContactEnquire Now

Get In Touch

For all enquiries about this property, contact Max Walls International

+61 2 9977 7777 info@maxwalls.com.au

×
< >
×
< >